Introducing 4555 Pine Tree Drive, a combination of world renowned architecture and astonishing landscape design defining a truly poetic presence. The unique setting, one of only three alike in Miami Beach with uninterrupted views of the Atlantic Ocean captures an energizing eastward breeze. Dissolving boundaries with expansive openings truly combining indoor and outdoor spaces with naturalistic gardens as the context and a beautifully restrained palette come together bringing the home to life.
4555 PINETREE DRIVE
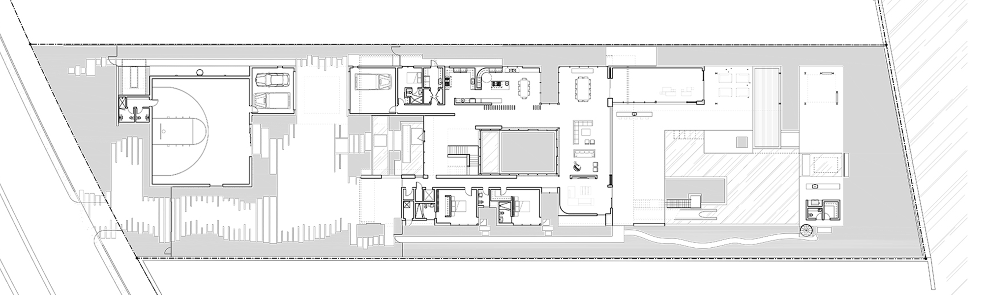
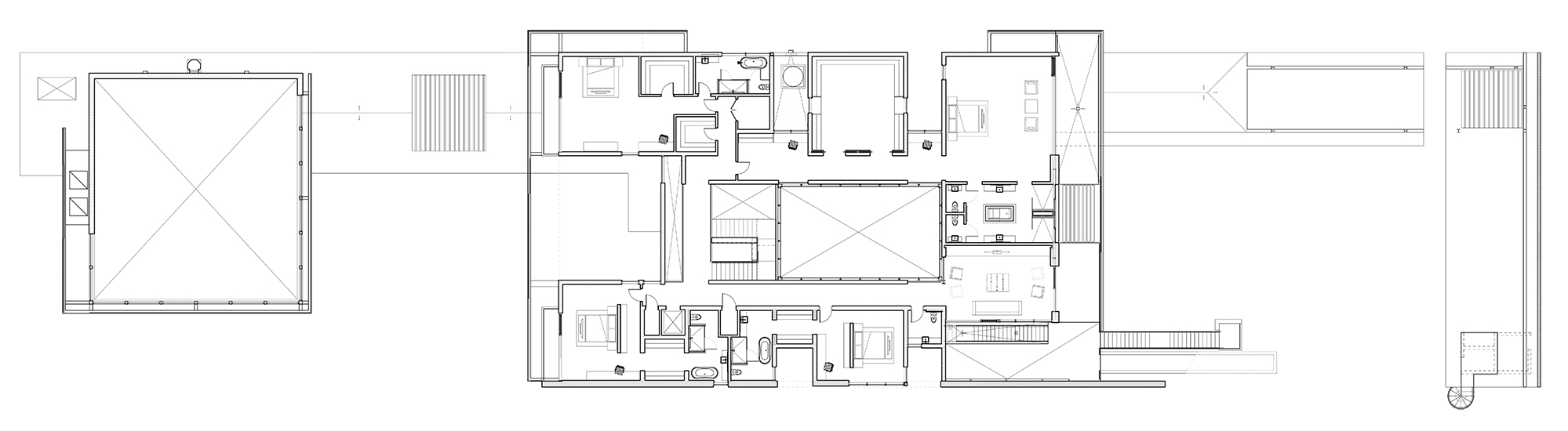
6 Bedrooms + Maids Quarters
7 Full Baths + 2 Powder Rooms
Approximate Sq. Feet: 19,000 Livable, 16,000 Under A/C
Lot Size: 38,482 Sq. Feet with 100 Feet on the Water
Architecture by SOATA
Interior Design by Nils Sanderson from REM Koolhaas
Landscape Design by Raymond Jungles
Lighting Design by Lux Populi
Built by Barry Brodsky from Brodson Construction
exquisite design by world-renowned architects
Indoor Half-Court Basketball Court
Custom Kitchen with Curved walnut cabinets, Calacutta marble countertops and Gaggenau appliances
Custom Chef’s kitchen with commercial blue star appliances
Closets built to suit
Boat dock built to suit
Stunning views of the Atlantic Ocean
Water-front swimming pool
Waterslide concealed by beautiful glass staircase
and more
4555 PINETREE DRIVE
4555 PINETREE DRIVE

The exterior architecture of the home was designed by world-renowned South African firm SAOTA and is the premiere home that SAOTA has designed in Miami. It was conceived as a self-contained, multi-layered landscape of experiences which takes advantage of both Miami’s tropical climate as well the site’s sought-after views over the canal toward the Atlantic Ocean and Miami Beach.
Pine Tree is SAOTA’s first project to be completed in Miami. SAOTA’s design DNA is derived from the South African way of living which places an emphasis on the outdoors as people live both in and through their homes. Captivated by the Miami climate and landscape potential the design embodies these principles; creating a landscape of experiences.
SAOTA sought to spread the program across the site as much as possible. In direct contrast to a typical approach of a singular building element on the property, the design is porous, bringing the landscape into the interior of the house. Through the introduction of a collection of introverted and extroverted courtyards, all aspects of the program have an immediate relationship to the outdoors.

The design is as much about containment as it is about the views through it. The concept of containment is perhaps best embodied in the screens that cloak the building. Primarily born out of the functional need for privacy and solar control; their application evolved to something far more significant as CNC punched anodised aluminium becomes architectural jewelery. The screens play with the character of light, heightening the experience of enclosure and transparency. In some instances they define spaces as with the double volume nature of the entrance, in others they facilitate the bedroom terraces becoming part of the bedroom – private, protected sanctuaries.
Whilst the overall architectural design is a key focus of the SAOTA design team, this becomes secondary to the primary function of how the design will be actually be used. This drives how areas are positioned and connected; how the house lives. This approach may seem counter intuitive to most architects however, prioritizing use and function is one of the main reasons for SAOTA’s international success.
4555 PINETREE DRIVE
4555 PINETREE DRIVE

The interiors of the property are designed in collaboration with Nils Sanderson, formally with Herzog & de Meuron, who also worked on the Penthouse in the celebrated 1111 Lincoln Road retail garage complex by Herzog & de Meuron in Miami Beach. There is a refinement to the interior design of the home that subtly rouses all senses but leaves room for discovery. Warm tones are explored throughout the sun-filled spaces through delicate manipulations of patterns and textures, and complemented by exquisite lighting designed by Lux Populi.
The designers approach keeps things calm and subdued favoring restraint in the palette of the home creating a design with almost no design. The driving motivated derived from the climate, view, sense of space and color brings a subtly to the interiors allowing the manipulations to be rewarded when discovered. Few materials are applied throughout the home allowing the materials to speak for themselves. The Limestone, Calacutta and woods richness, texture and movement achieve singularity and warmth. Everything adds up and speaks together.

Moments throughout the home typically forgotten are subtly manipulated with curved walls and concealed lights guiding you through the home and completing a sense of enclosure. The textured walls bring a warmth while the white disappearing doors create a curiosity. The home is beautifully casual and unquestionably luxurious.
4555 PINETREE DRIVE
The landscaping of the project, featured throughout the exterior and interior of the home, was designed by Raymond Jungles. Landscape Designer Raymond Jungles in collaboration with the SAOTA created a naturalistic habitat that blurs interior and exterior spaces forming interactive gardens throughout the residence. The design of the residence incorporates a dramatic introverted atrium as well as extroverted gardens allowing a lush and chaotic greenery to invade the home.

Mr. Jungles romantically emphasizes the entrance to a residence should be celebratory and creates this with the interaction of water and gardens, incorporating vines to landscape walls integrating architecture into the landscape. The main focus of Jungles design relies on the settings abundance of water and blue sky as well as interior and exterior architecture to make a distinctive garden that has vegetation proportionate to the residence. The landscape designer worked closely with the architects to ensure the hardscape elements within the residence and garden are aligned. Additionally, the exterior of the residence is protected by large palms creating separation and privacy between adjacent homes. Mr. Jungles relaxed, confident and freehand approach to landscaping resulted in a natural environment that truly reflects Miami. His input has added another dimension to the project.

Aside from the beautiful interiors, standout exterior elements of the home include stunning views of the Atlantic Ocean from the second floor observation deck, a waterslide concealed by an elegant glass staircase, a pool with open views of 100 feet of water and a boat dock that will be built to suit the buyer’s preferences. In the front of the home, instead of addressing the street with obtrusive garages or gates, there is a large multi-purpose room eliminating the need for a front boundary that is currently designed as a half-court basketball court. Each carefully designed component of this home harmoniously comes together to create a truly one of a kind property in the heart of Miami Beach.
This architecturally distinct home located in one of the most exclusive neighborhoods in Miami Beach, was the creation of Developer Barry Brodsky, and built by his company, Brodson Construction. The company is recognized for stunning high-end projects throughout Miami, both commercial and residential, inclusive of countless sophisticated homes including 2068 North Bay Road, restaurants such as Juvia and numerous retail spaces in Bal Harbour Shops including Gucci, Tiffany & Co., Valentino and more.


